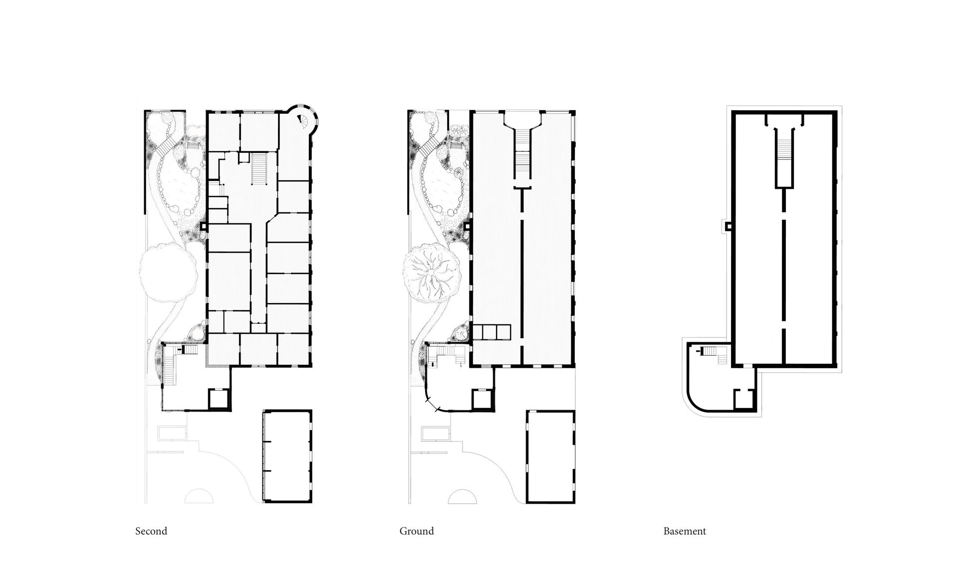
Historic Restoration


A black and white drawing of two crossed pencils and a ruler.

historic restoration